沈阳嘉里中心B地块项目规划许可批前公示
时间:2018-12-20 00:41 来源:沈阳市规划和国土资源局 浏览:次
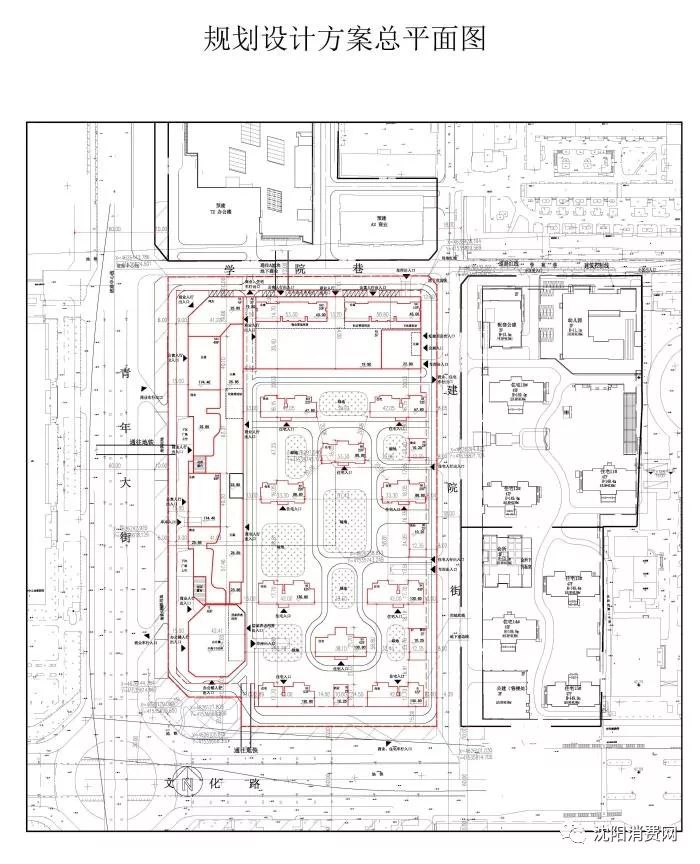
据沈阳市规划和国土资源局12月20日消息,盛祥置业(沈阳)有限公司开发的沈河区青年大街东侧的沈阳嘉里中心B地块项目,规划用地性质为居住、商业用地,建设单位现已委托设计单位按照相关技术标准和规范完成建设工程规划设计方案,现予以公示并公开征求意见。公示及收集意见日期:2018年12月20日——2019年01月03日(10个工作日)。![]() 公示信息显示,沈阳嘉里中心B地块项目建设用地面积66410㎡,商业面积65500㎡,总体商业比58%。其中,地上共建设21栋,建筑面积438700㎡,涵盖住宅、办公、公寓、商业、物业管理用房、社区管理用房、居家养老用房、卫生服务站、公厕等;地下建筑面积169300㎡,涵盖地下停车、地下商业、垃圾转运站等。项目建设停车位共3007个,其中地上30个、地下2977个。总建筑面积达60.8万平方米。 ![]() 来源:沈阳市规划和国土资源局 |

